畑中2丁目 新築戸建 全1棟up
★土地面積48坪、ゆとりある宅地と風通しの良い住環境★
- 太陽光発電でエコ。
- 付属のタブレットで家電や住宅機器をリンクできる新築分除住宅です。
- 近隣の同社施工例のご見学も可能です♪
|
| 所在地 | 東京都青梅市畑中2丁目 畑中2丁目 新築戸建 |
|---|---|
| 交通 | JR青梅線 青梅駅 徒歩25分 バス(畑中下西 乗7分 停歩5分) |
| 完成予定日 | 2026/4 | 建築確認番号 | 第25UDI1W建09779号 |
|---|---|---|---|
| 築年月 | 2026/4 | 新築/中古 | 新築 |
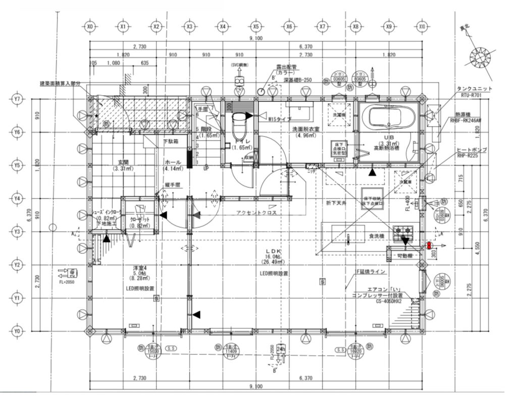
| 建物面積 | 104.33m² | 計測方式 | 壁芯 |
| バルコニー | 向き | ||
| 建物階数 | 地上2階 | 部屋階数 | 2階 |
| 部屋/区画番号 | 総戸/区画数 | 1 | |
| 建物構造 | 木造 | ||
| 間取内容 |
|
||
| 駐車場 | 取引態様 | 一般 | |
| 引渡/入居時期 | 現況 | ||
| 地目 | 宅地 | 用途地域 | 第一種中高層住居専用 |
| 都市計画 | 市街化区域 | 地勢 | 低地 |
| 土地面積 | 161.16m² | 土地面積計測方式 | 公簿 |
| 建ぺい率 | 60% | 容積率 | 150% |
| 土地権利 | 所有権 | 接道状況 | 一方 |
| 接道方向1 | 北 | 接道間口1 | |
| 接道種別1 | 接道幅員1 | 4.7m | |
| 周辺環境 |
青梅市立第5小学校 青梅市立西中学校 |
||
| 設備・条件 | |||
| 物件番号 | 10 | ||
※物件掲載内容と現況に相違がある場合は現況を優先と致します。





